Professional Work

Overview

This section contains work from my employment at ADAM Architecture as a Junior Architectural Technologist. During this period, I worked on projects ranging from master planning to technical details.

Details

My contributions have been instrumental in shaping the details of the project. I put together drawings, specifications and submittal packages. I utilized sustainable design principles to minimize environmental impact and achieve project energy efficiency. I developed detailed architectural drawings and specifications for residential and commercial projects, utilizing ArchiCAD and AutoCAD software.

Masterplanning and Landscape Design

This project was based on a residential guest house. I was tasked with following the client's brief for the landscape, which consisted of allocating drainage routes while following building regulations and planning policies.

Masterplan view of site
Landscape design plan

Results

The project was a great success. It was completed on time, and the client was very satisfied with the final result. The design plan was executed effectively, and the resulting space has exceeded expectations. The team also finished construction under the calculated budget.

Sections and Technical Details Project #1

Start describing your topic in a few words. Make sure to stay concise and be professional. You can write about your design process, skills and expertise, or your awards and recognitions. If you have client testimonials, include them here.

Typical Dormer Plan. Scale 1:10
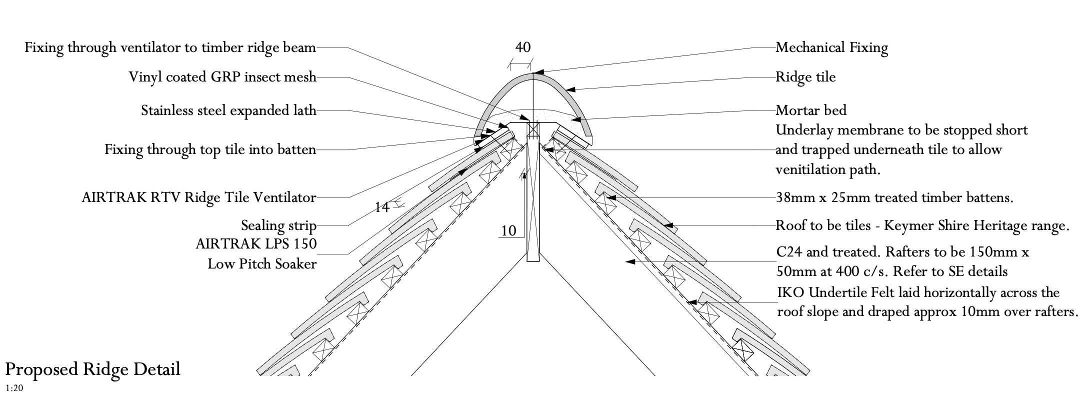
Proposed Eaves with Tile Hung wall 1:20
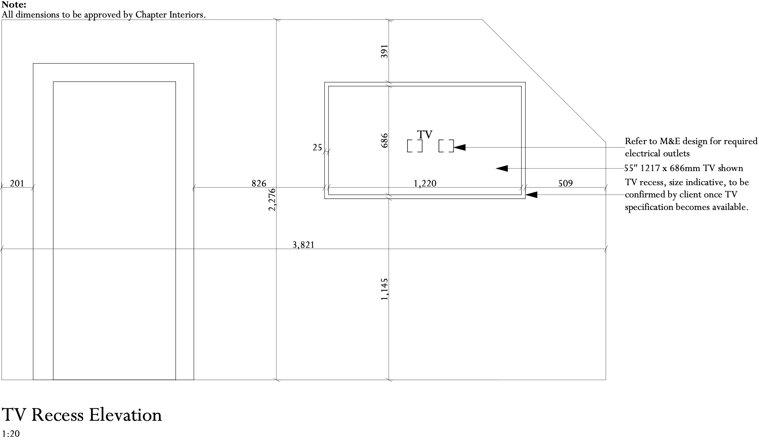
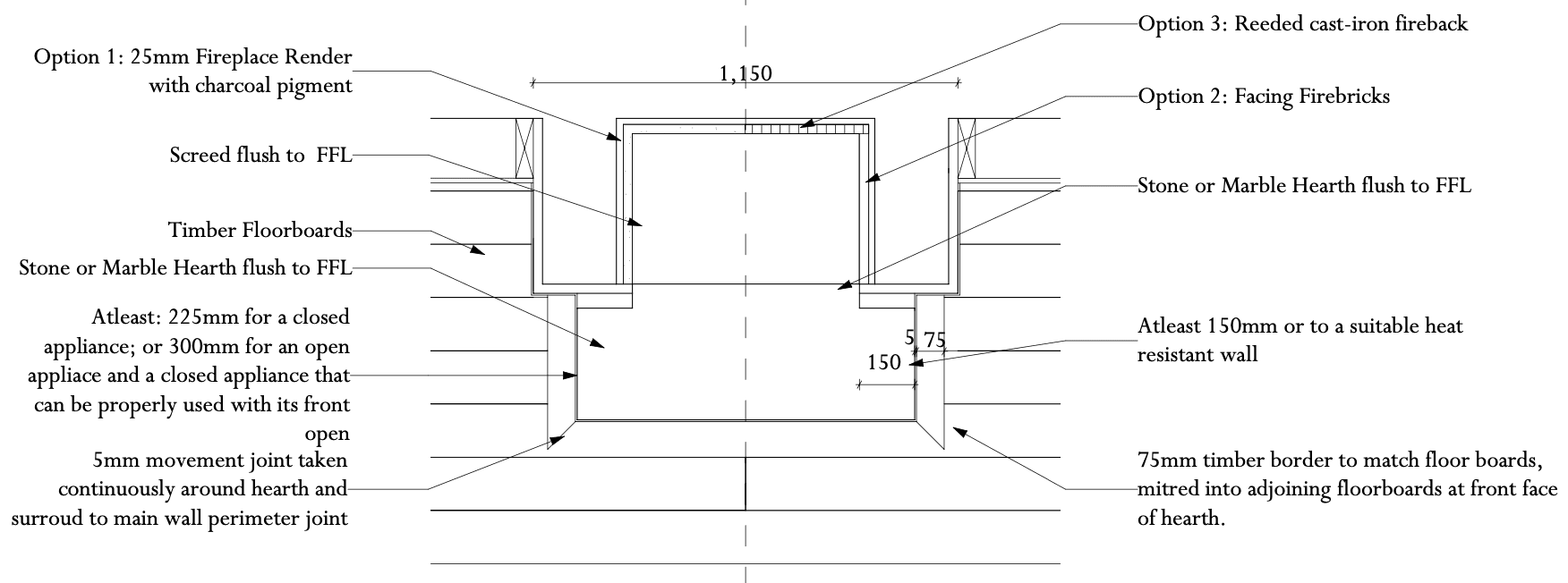
Isometric Fireplace Design
Fireplace Plan

Results

The project was a great success. It was completed on time, and the client was very satisfied with the final result. The design plan was executed effectively, and the resulting space has exceeded expectations. The team also finished construction under the calculated budget.

Project #2

This project is a proposed dwelling after demolition. I worked alongside an Architect to provide options ranging from elevations to technical details.

Identifying lead work falls from each elevation
Lead roof dormer section 1:20
Dormer window detail section 1:10
Dormer window plan 1:10

Results

This project was still in its early stages, and the structural engineer needed to approve all details before the final notes were placed.

Project #3

This project involves an existing dwelling with a few proposed parts. As it is a grade 2 listed building, there were quite a few design restrictions, and the planning council needed to confirm a few things. I was tasked with drawing up the technical sections for this project.

Results

The project was a great success. It was completed on time, and the client was very satisfied with the final result. The design plan was executed effectively, and the resulting space has exceeded expectations. The team also finished construction under the calculated budget.

My time at ADAM was truly an experience. Despite not knowing much about classical/traditional architecture, it was an enlightening and knowledgeable journey. I learnt so much about the business side and specifics of the Architectural world.

Amé Vorster

14 New Road, SO140AY| 07751206158 | amevorster2000@outlook.com

© Amé Vorster, 2024