University Projects #1

First Year

This section contains work produced during the first year that is all university-related. It consists of hand-drawn technical drawings and one residential house project.

Residential Project

Project Brief

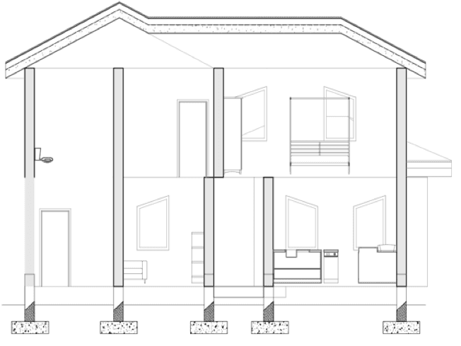
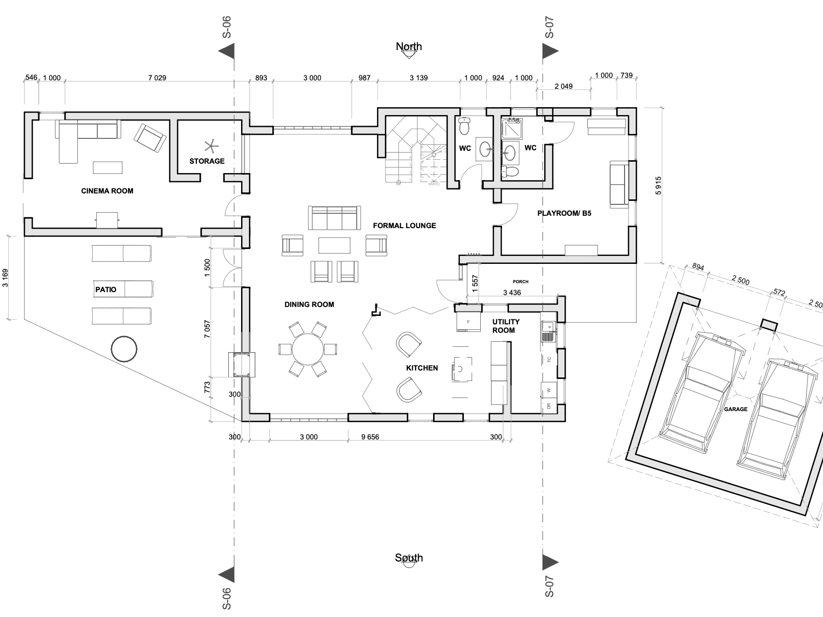
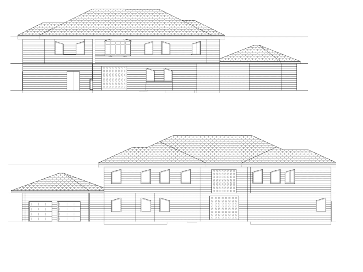
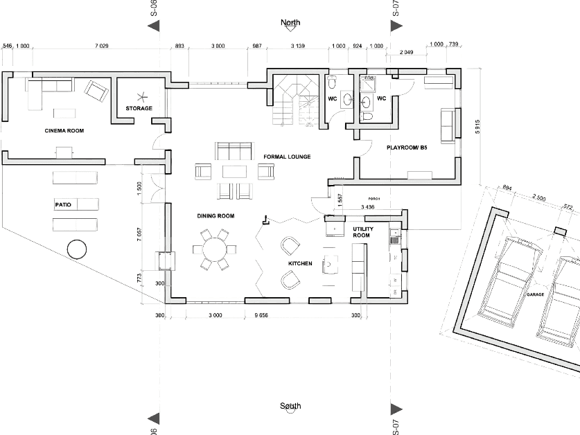
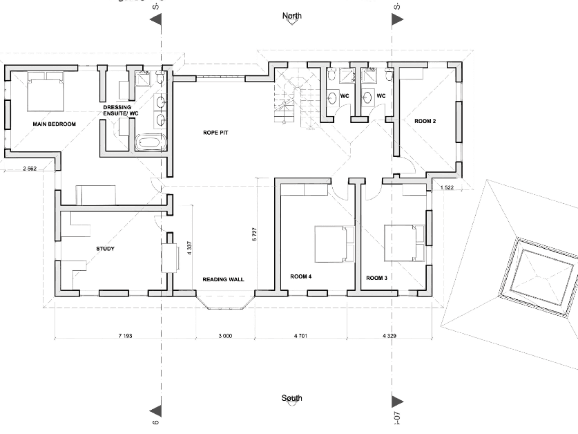
We were asked to design a residential home for a family of five in the Woolston, Southampton area. Some constraints were flood levels and the site layout. Although the project was developed with a 'modern' aspect, it was designed to integrate into its surroundings, relating to the neighbouring buildings. Leveraging the site's dimensions made a massive mansion with a unique landscape plot possible.

Amé Vorster

14 New Road, SO140AY| 07751206158 | amevorster2000@outlook.com

© Amé Vorster, 2024