University Projects #2

Year Two

This section contains work produced during the second year. The main focus was on commercial building designs and technical details, and Revit was used to produce rendered designs of the buildings.

Commercial #1

Sports Complex Brief

The project brief focused on designing a new flagship sports building for the East Park Terrace campus. The location was selected as the brownfield site of the former ambulance station from the 1960s, next to the Spark Building.

We had to move the building design to RIBA Stage 3 and submit a planning application on the client's behalf, assuming the project was at RIBA Stage 2 Concept Design. The client wanted to improve its reputation for offering undergraduate and graduate students who are interested in sports and for allowing all students to use the sports facilities on an as-needed basis.

Project SWOT's

Considering the public as a whole for this project was critical because the complex must not only suit the students but also satisfy external users. For example, many WCs were required to meet building codes. To allow all users to congregate in the exact location while receiving different services, an additional gym, changing rooms, recreational facilities, social spaces, and so on were proposed as part of the design.

Concept Sketches

Figure 2 shows the site plan's shape and format and how it would work. Figure 3 shows levels, different sections, and the fall of 7.5m from the Northwest.

Figure 4 shows how a beehive shape would work, but the practicality behind it would not have made sense, especially considering the 2 Sport Courts, which look at exterior shape, form, and placement.

Figure 5 incorporates the inspiration from Yin-Yang, trying to bring nature inwards by including an atrium or balcony gardens on different levels. It shows a 3D idea of what the Façade could look like.

Figure 6 elaborates more on the various levels and roof layouts of the designs, looking at stairwell and corridor designs.

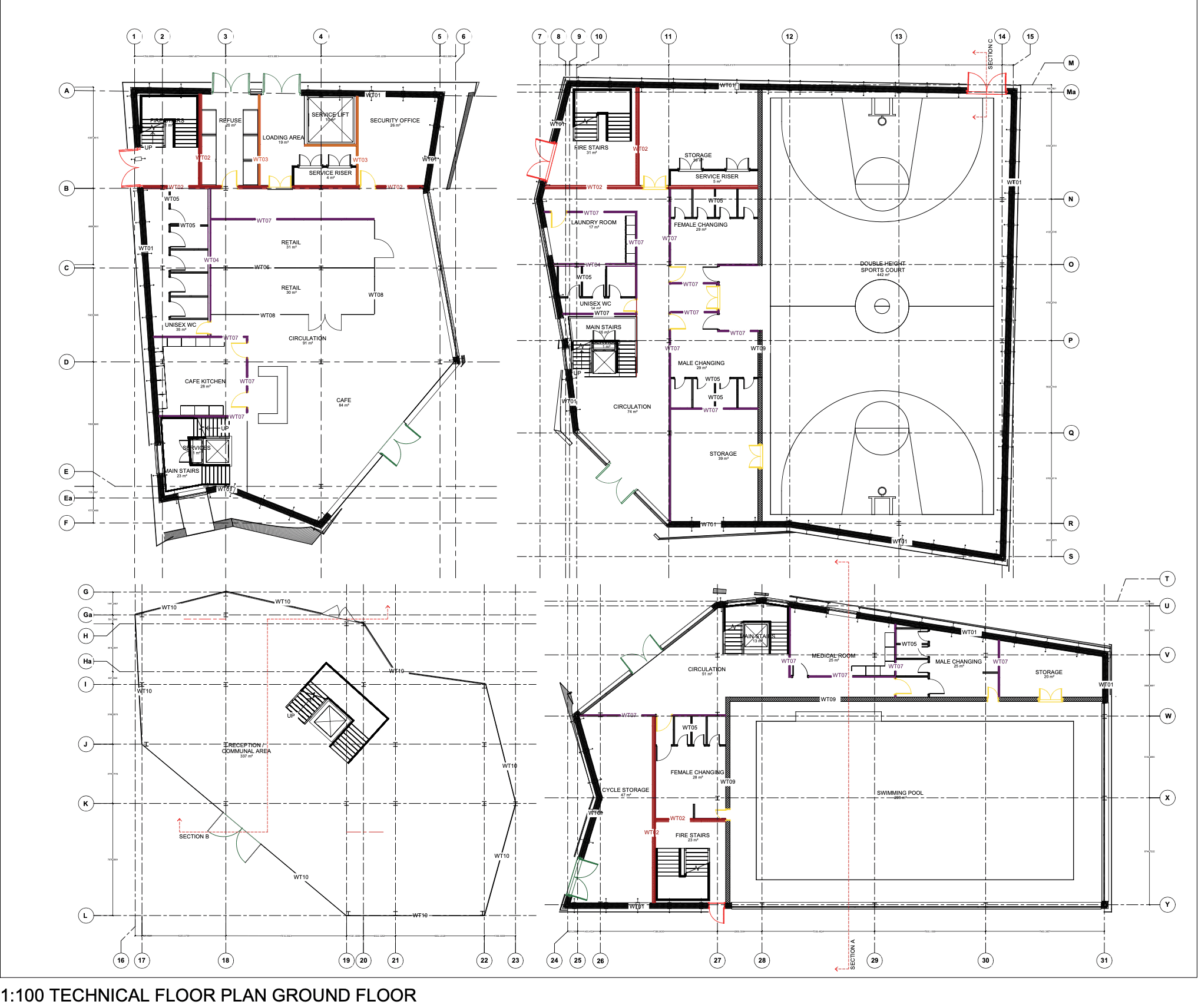
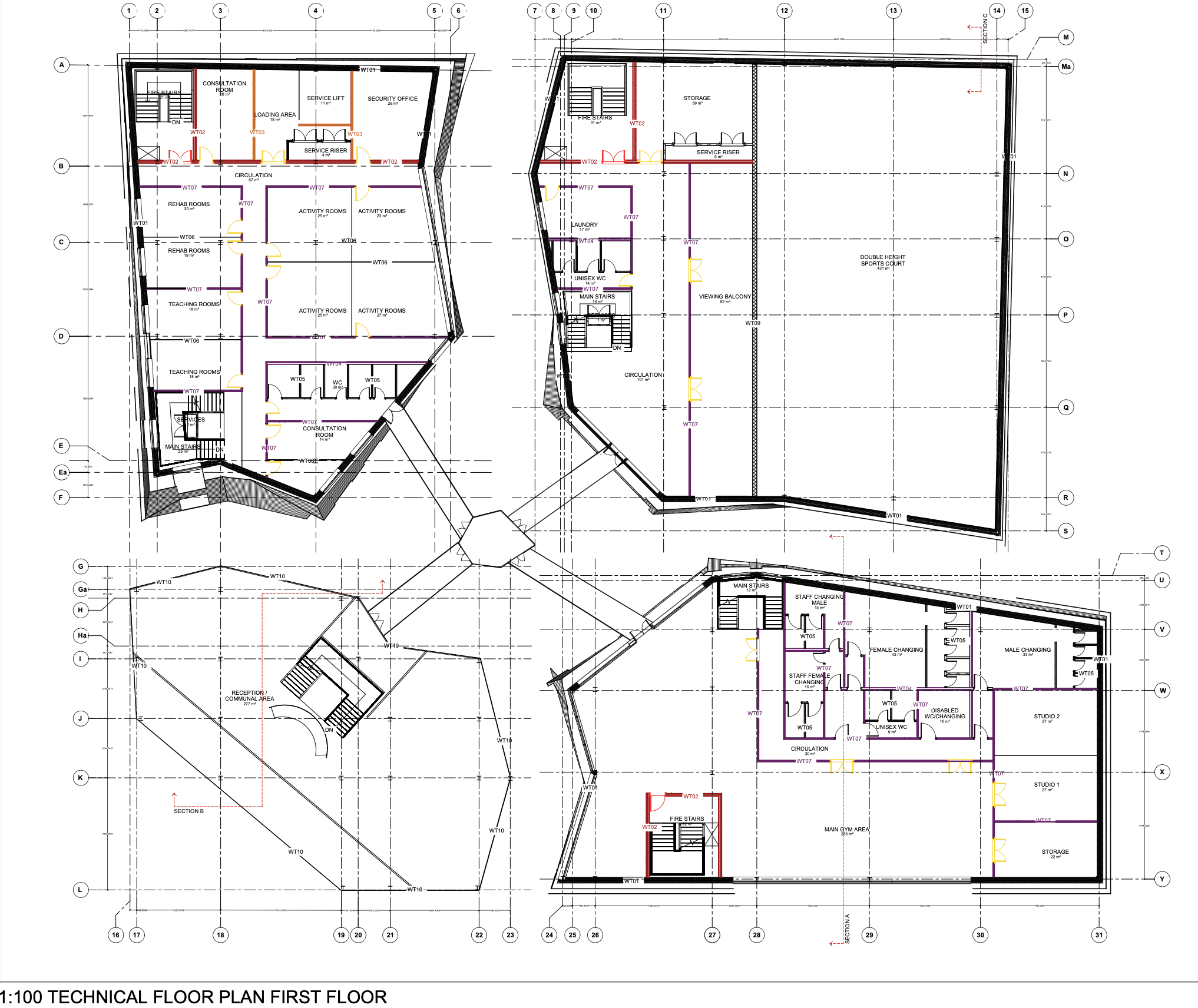
Floorplans

Basement Floor plan
Ground Floor plan
First Floor plan

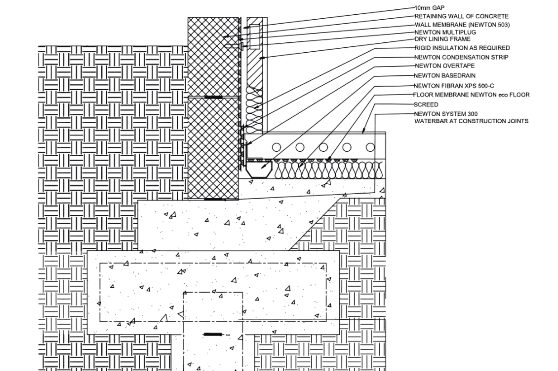
Technical Details

Section A-A
Detail 1
Detail 7

Results

Although this project had a few constraints to consider in retrospect, the design process and technical details were a learning curve that resulted in a well-oriented understanding of the architectural techniques used in construction.

Commercial #2

"A place for business"

Office block

Design an office block that gives users comfort and space for future modifications. The idea for this office block came from my own experience. As building occupants, we want to feel at ease in our surroundings.

Floorplans

Ground Floor Plan
First Floor Plan
Second Floor Plan
Third Floor Plan
Fourth Floor Plan
Roof/Site Plan

Elevations

Sections

Section A-A
Section B-B

Renders

Results

Following the brief and personal experiences, providing varied social spaces and connection locations for building users, particularly office block users, is critical to making them comfortable. Internally, the plan has vast open spaces with designated work areas. The building has a modern façade that allows plenty of natural light to enter.

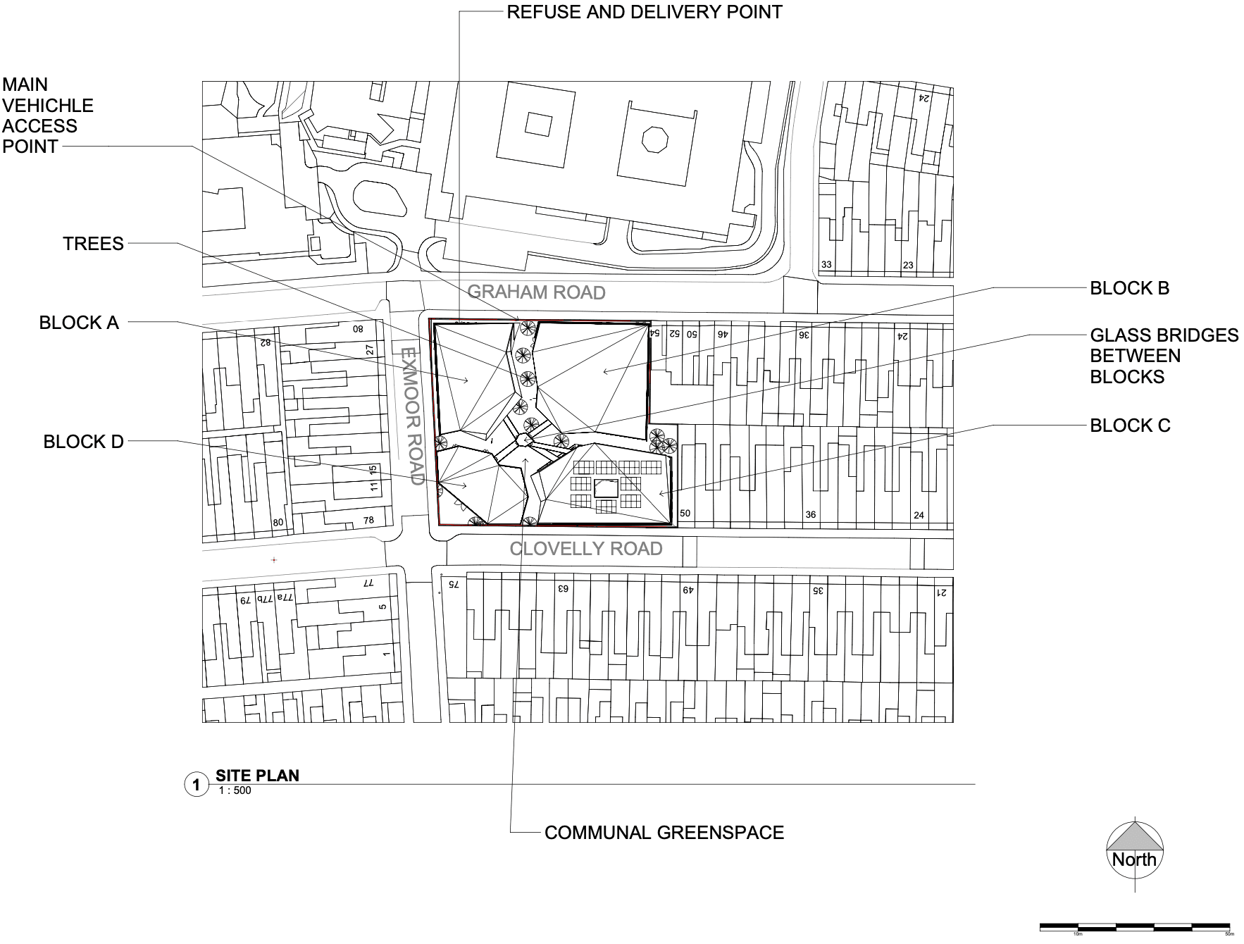
Final Year Group Project

YMCA-Rehabilitation Centre

Southampton

YMCA Bournemouth is a well-established independent organisation and registered provider of social housing, and it is a member of YMCA England and Wales. Their goal is to create a caring, supportive community where everyone may reach their full potential in mind, body, and spirit, where individuals can belong, contribute, and prosper. They are there to assist and support people of all ages, ethnicities, faiths, and none, particularly those in dire need or vulnerable. They want to help people reach their most significant potential and build inclusive, energetic communities in an atmosphere of Christian love and compassion.

Project Brief

The proposed development, through the Southampton YMCA branch, involves well-designed, spacious studio apartments and associated staff facilities to provide additional low-support “move-on” transitional housing. In this housing, people can live in high-quality, self-contained accommodation as part of a larger community while working towards complete independence. Support and Housing Management workers will be available 24 hours a day, and while their presence will be reduced at night, their role will be supplemented by a complete CCTV system throughout the complex.

Concept Sketches

For this project, I collaborated with three other girls to create this beautiful design. We each had a separate task to help each other complete the project. After I came up with the concept of Kintsugi for the building's design, it all fell into place.

Floorplans

Elevations

Section & Technical Details

Renders

Sustainability Approached Render

Results

The project was a great success. It was completed on time, and the client was very satisfied with the final result. The design plan was executed effectively, and the resulting space has exceeded expectations.

Amé Vorster

14 New Road, SO140AY| 07751206158 | amevorster2000@outlook.com

© Amé Vorster, 2024